logo-tschumi-architects

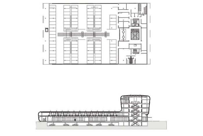
Vacheron Constantin Headquarters

Geneva, 2001-2004
This building serves as the manufacturing and administrative headquarters of Switzerland’s oldest watchmaking company. The concept for the project is based on the idea of a thin, flexible envelope. The exterior surface is formed from a metallic sheet that unrolls over the structure’s geometry, lifting to create a larger multistory portion of the building. The interior is clad with a wood veneer. The resulting space is sleek and precise outside, and warm and inviting inside. The logic of unrolling makes the building appear almost unenclosed. The envelope opens to welcome workers and visitors, admitting ample direct light on the north side and filtered light on the south.

more

Program: Offices 
photo of the office
photo of the office
photo of the office
photo of the office
photo of the office
photo of the office
photo of the office
photo of the office
photo of the office
photo of the office