logo-tschumi-architects

Guangzhou Museum

Guangzhou, 2014-2015
Architecture can start with a program (functionalism), with a site (contextualism), or with a style/ideology (classicism, modernism, postmodernism, regionalism etc). We feel that in the 21st Century, architecture must start with ideas or concepts. Our Guangzhou Museum has eight concepts:

1st Concept (defining)
The site had a number of existing constraints. As we tried to solve them, we realized that the outline of our museum increasingly began to resemble the outline of the city walls of the old Guangzhou city. This became our first concept.

2nd Concept (directing)
When designing a museum, many architects focus on the artifacts to be located inside the museum. However, the Guangzhou Museum aims to be a museum of the city as well, so we decided to consider one of the city’s most prized and sacred constructions, the Chigang Pagoda, located immediately to the north of the site. We made the museum and the Pagoda engage in a tight dialogue, so the two buildings would be read together as a pair. This became our second concept. We cut large indentations into the mass of the museum so the main one would point toward the pagoda. We then cut a second indentation, looking toward Canton Tower, and then a third looking toward the future Cultural District. By showing three directions, one building would be like a Chinese compass, pointing toward the past, the present, and the future.

more

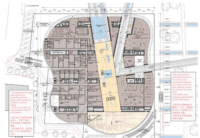
Program: Museum 
photo of the office
photo of the office
photo of the office
photo of the office
photo of the office
photo of the office
photo of the office
photo of the office
photo of the office