logo-tschumi-architects

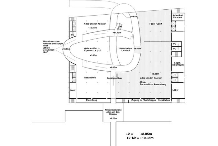
K-Polis Department Store

Zurich, 1995
The need for seduction through a language of display links department stores and museums. Within them, each exhibited product becomes an object of desire, and walking is the preferred means to apprehend such desirable objects. A slow dance begins between two bodies—the dynamic body of the visitor or consumer and the static body of the object of consumption.

more

Program: Public Buildings 
photo of the office
photo of the office
photo of the office
photo of the office
photo of the office
photo of the office