logo-tschumi-architects

ECAL School of Art

Lausanne-Renens, 2005-2007
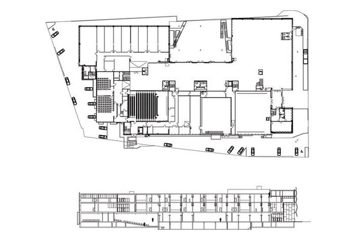
The new building for the Ecole Cantonale d’Art de Lausanne (ECAL) in Renens, an industrial neighborhood at the edge of Lausanne, was designed to house a state-of-the-art design school and cultural center.

Built in and around a former factory that housed IRIL, a knitwear company that produced stockings and other clothing, the new school entirely transforms the existing 1950s-era structure—an enormous four-story building with floor plates as large as a football field. In order to bring sunlight into the new school, Tschumi carved four slender atria or light wells into the existing structure, distributing natural light throughout the building. A 200-foot-long exhibition hall on the ground floor, punctuated by light wells and exposed stairs, provides circulation and divides the space into both large and intimate areas for study, work, and creative expression.

more

Program: Educational, Cultural 
photo of the office
photo of the office
photo of the office
photo of the office
photo of the office
photo of the office
photo of the office
photo of the office
photo of the office
photo of the office
photo of the office