logo-tschumi-architects

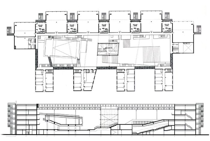
School of Architecture, Marne-la-Vallée

Paris, 1994-1999
A fundamental premise of the project is that Marne-la-Vallée is at the same electronic distance from London, Berlin, Tokyo, New York, or Delhi. In the midst of this global architecture of culture and information, the marginal or de-centered actual location of the school is seen as an advantage. Removed from habits of thought related to the conservation of historical centers, the site, set amidst a new 20,000-student technological complex developed by the French government, provides a starting point for a model of a school in the age of mobility.

more

Program: Educational 
photo of the office
photo of the office
photo of the office
photo of the office
photo of the office
photo of the office
photo of the office
photo of the office