logo-tschumi-architects

Lerner Hall Student Center

New York, 1994-1999
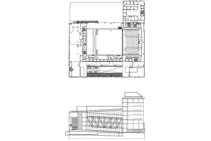
The design of the student center for Columbia University proved to be challenging because of the requirement that it fit within the university’s historical master plan, a 19th-century neoclassical composition by the firm McKim Mead and White. The strategy adopted works within the regulating lines of the original plan, which mandated double wings, and places the major innovation in the “in-between” space inside them. The two traditional wings are connected by a new type of ramp, with the different features of the program organized along it.

more

Program: Performance, Educational 
photo of the office
photo of the office
photo of the office
photo of the office
photo of the office
photo of the office
photo of the office
photo of the office